0

Appartement d'exception 133m² avec jardin et cave, à deux pas du centre de Barcelonnette

Barcelonnette (04400)
Réf : 1519

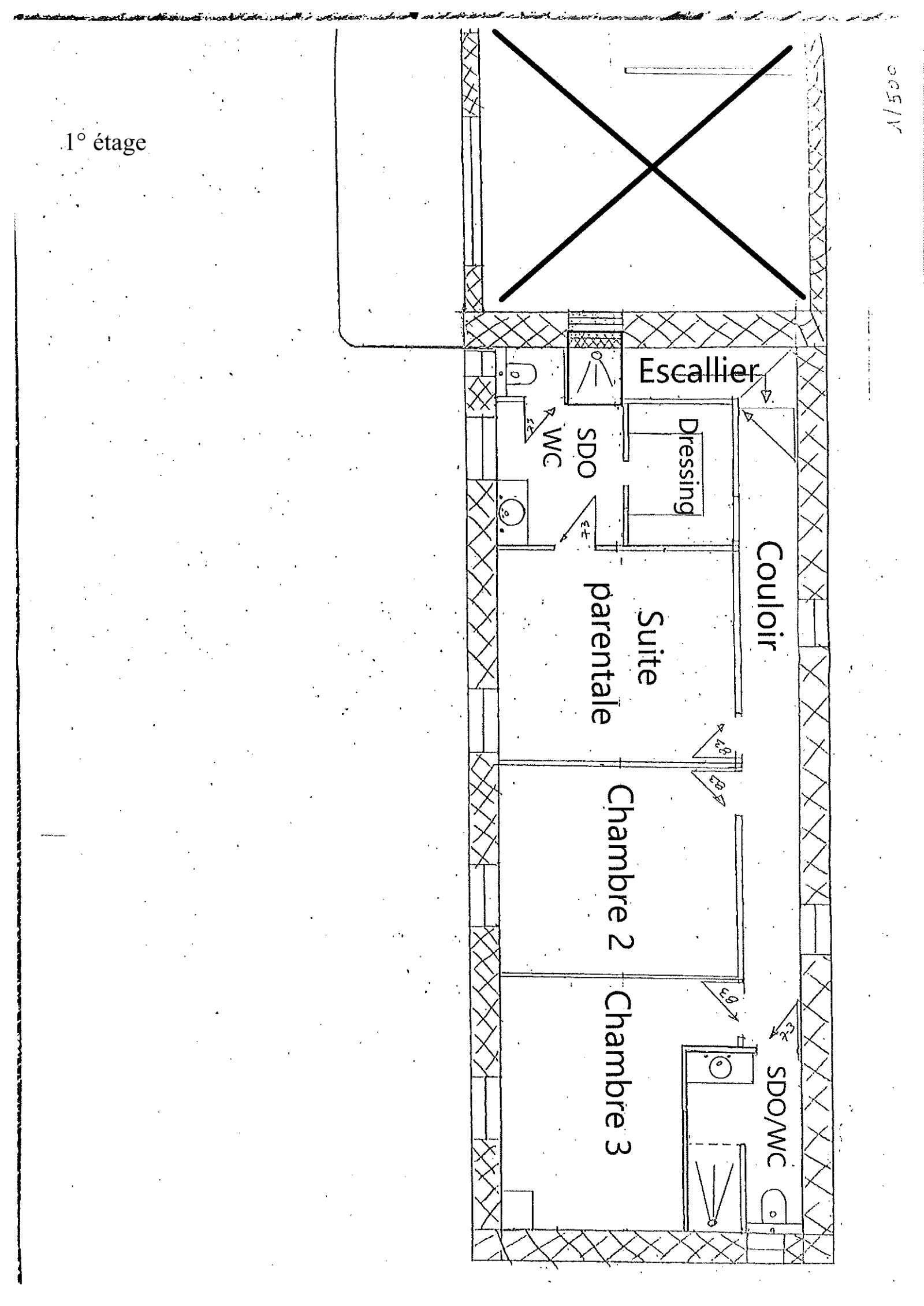
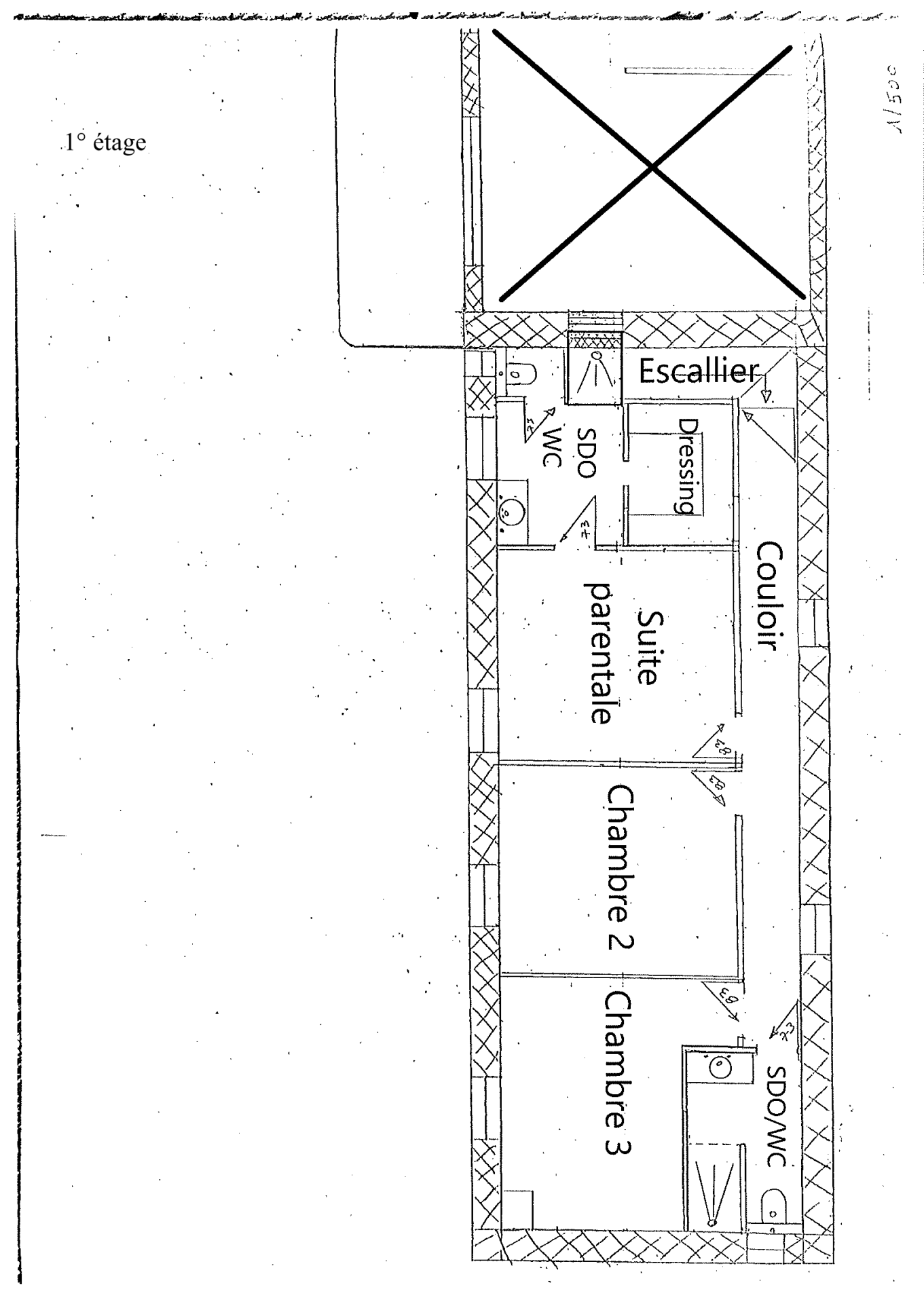
Découvrez ce magnifique appartement type T5 de 133m² habitable, 200m² utile, entièrement rénové avec goût, situé à deux pas du centre-ville de Barcelonnette. Offrant des prestations de qualité et un cadre de vie privilégié avec son jardin privatif et sa grande cave, ce bien est une opportunité rare. Description détaillée : Situé dans une petite copropriété avec de très faibles charges, cet appartement en duplex se compose comme suit : Rez-de-jardin : Une entrée accueillante. Un bureau ou chambre, offrant une flexibilité d'aménagement. Un vaste (40m²) séjour/cuisine, espace de vie convivial et lumineux. Un WC. Une buanderie pratique. Étage : Trois chambres, dont une suite parentale avec salle de bain attenante. Deux salles de bains modernes. Deux WC. Atouts majeurs : Rénovation complète : L'appartement a bénéficié d'une rénovation de qualité, avec des matériaux modernes et des finitions soignées. Extérieurs : Un jardin privatif de 220m² entièrement clôturé, agrémenté d'une terrasse en bois idéale pour les moments de détente. Un garage voiture 2 places avec électricité. Cave spacieuse de 66m² offrant un espace de stockage considérable. Prestations de qualité : Toiture neuve en bac acier avec isolation performante. Huisseries neuves en PVC double vitrage pour une isolation thermique et phonique optimale. Façade refaite et volets bois neufs, apportant un cachet authentique. Raccordement aux réseaux neufs. Chauffage : Chauffage électrique et conduit existant pour l'installation d'un poêle à granulés ou d'un insert à bois, offrant une flexibilité et un confort supplémentaires. Emplacement idéal : À deux pas du centre-ville de Barcelonnette, vous profiterez de toutes les commodités à proximité immédiate. Faibles charges de copropriété : Un atout économique non négligeable. Contact : Pierre TURREL Agent commercial. Téléphone : 06.62.18.72.92 Email : immogliss04@gmail.com

Prix du bien 435 000 €
Pièce(s) 5
Chambre(s) 3

Caractéristiques du bien

Caractéristiques Valeurs
Code postal 04400
Surface habitable (m²) 132,98 m²
Surface loi Carrez (m²) 132,98 m²
Nombre de chambre(s) 3
Nombre de pièces 5
Nombre de niveaux 2
Vue Dégagée
Nb de salle d'eau 2
Cuisine Américaine
Mode de chauffage Electrique
Type de chauffage Convecteur
Format de chauffage Individuel
Balcon NON
Terrasse OUI
Sous/sol AVEC
Murs mitoyens 1
Cave OUI
Surface cave (m²) 66
Exposition Ouest
Année de construction 2022

Infos financières

Caractéristiques Valeurs
Prix de vente honoraires TTC inclus 435 000 €

Bilans énergétiques

DPE GES
Ce bien vous intéresse ?
Fieldset par défaut
Fieldset par défaut
Validation

* Champs obligatoires

Contacter l'agence
Validation
Les informations recueillies sur ce formulaire sont enregistrées dans un fichier informatisé par La Boite Immo agissant comme Sous-traitant du traitement pour la gestion de la clientèle/prospects de l'Agence / du Réseau qui reste Responsable du Traitement de vos Données personnelles. La base légale du traitement repose sur l'intérêt légitime de l'Agence / du Réseau. Elles sont conservées jusqu'à demande de suppression et sont destinées à l'Agence / au Réseau. Conformément à la loi « informatique et libertés », vous disposez des droits d’accès, de rectification, d’effacement, d’opposition, de limitation et de portabilité de vos données. Vous pouvez retirer votre consentement à tout moment en contactant directement l’Agence / Le Réseau. Consultez le site https://cnil.fr/fr pour plus d’informations sur vos droits. Si vous estimez, après avoir contacté l'Agence / le Réseau, que vos droits « Informatique et Libertés » ne sont pas respectés, vous pouvez adresser une réclamation à la CNIL. Nous vous informons de l’existence de la liste d'opposition au démarchage téléphonique « Bloctel », sur laquelle vous pouvez vous inscrire ici : https://www.bloctel.gouv.fr Dans le cadre de la protection des Données personnelles, nous vous invitons à ne pas inscrire de Données sensibles dans le champ de saisie libre.
Ce site est protégé par reCAPTCHA, les Politiques de Confidentialité et les Conditions d'Utilisation de Google s'appliquent.