0

T4 + PARKING + CAVE + GARAGE

Jausiers (04850)
Réf : 1393-6

EN EXCLUSIVITE !!!!

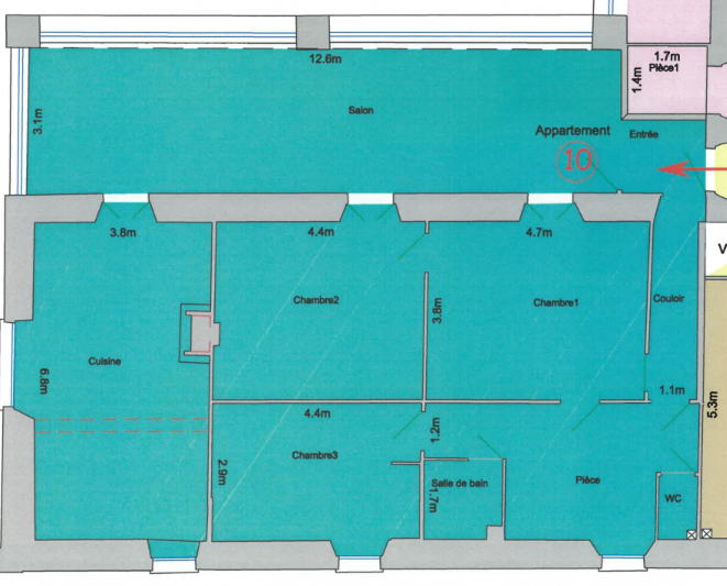
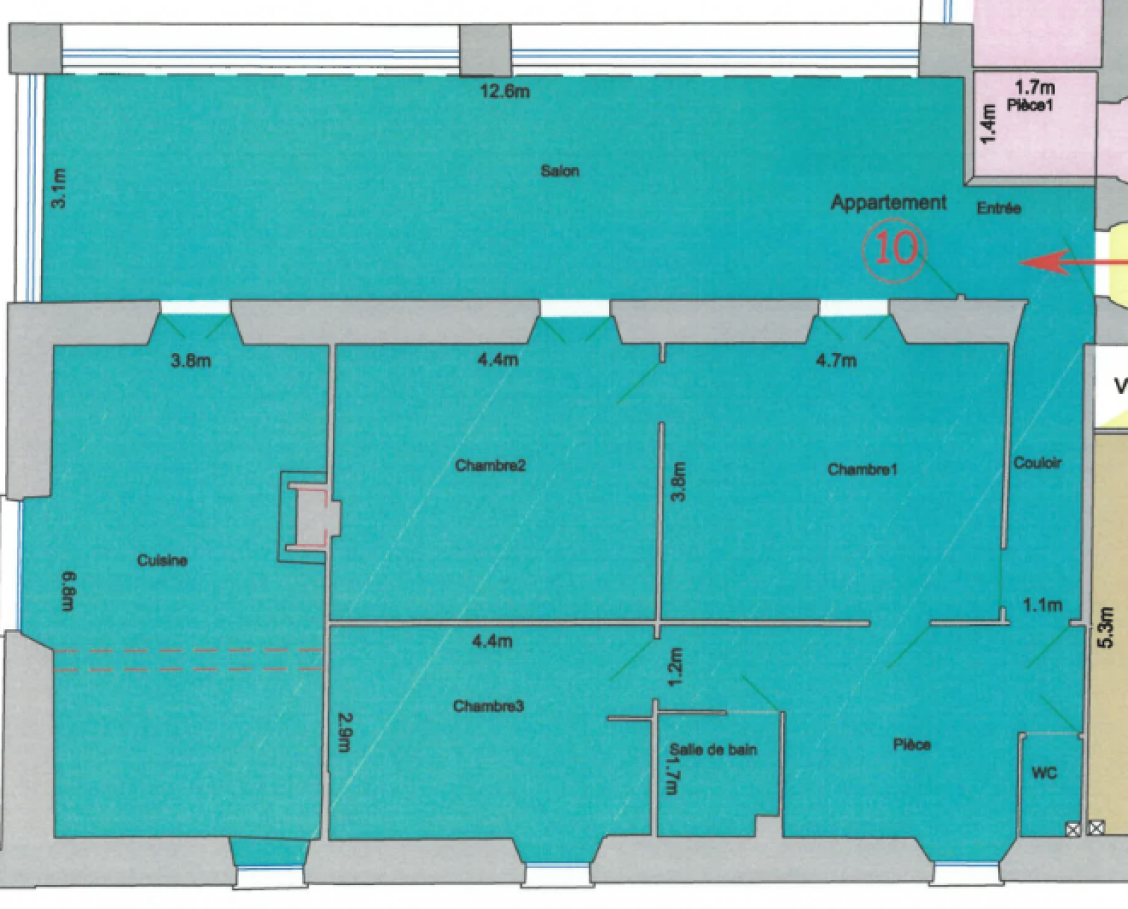
Sur la commune de Jausiers, Immogliss vous propose ce bien de 138m². Il se situe au sein d'une copropriété entièrement rénovée (façade, communs intérieurs et extérieurs). L'appartement ce compose d'une entrée suivie d'un vaste séjour disposant d'une vue dégagée sur les montagnes de l'Ubaye. Une cuisine équipée très lumineuse par sa triple exposition (EST, SUD, OUEST), trois chambres, une salle d'eau, wc. Bien vendu avec place de parking extérieure privative? garage et grande cave. Prévoir rafraîchessement sur l'appartement, cependant ensemble des huisseries neuves.

Petite copropriété (seulement 11 lots), peu de charges collectives.

Ce bien vous intéresse et vous souhaitez le visiter, contacter moi au 06.87.14.41.77 / aboutet.immogliss@gmail.com

Je suis Adrien Boutet agent commercial Immogliss, N°RSAC 815 166 095, RSAC de Manosque.

Prix du bien 230 000 €
Pièce(s) 4
Chambre(s) 3

Caractéristiques du bien

Caractéristiques Valeurs
Code postal 04850
Surface habitable (m²) 138 m²
Surface loi Carrez (m²) 138 m²
Nombre de chambre(s) 3
Nombre de pièces 4
Etage 2
Ascenseur NON
Vue Montagne
Nb de salle d'eau 1
Mode de chauffage Bois
Type de chauffage Cheminée
Format de chauffage Individuel
Balcon NON
Terrasse NON
Murs mitoyens 2
Cave OUI
Nombre de parking 1
Exposition Sud-Est

Infos financières

Caractéristiques Valeurs
Prix de vente honoraires TTC inclus 230 000 €

Bilans énergétiques

DPE GES
Ce bien vous intéresse ?
Fieldset par défaut
Fieldset par défaut
Validation

* Champs obligatoires

Contacter l'agence
Validation
Les informations recueillies sur ce formulaire sont enregistrées dans un fichier informatisé par La Boite Immo agissant comme Sous-traitant du traitement pour la gestion de la clientèle/prospects de l'Agence / du Réseau qui reste Responsable du Traitement de vos Données personnelles. La base légale du traitement repose sur l'intérêt légitime de l'Agence / du Réseau. Elles sont conservées jusqu'à demande de suppression et sont destinées à l'Agence / au Réseau. Conformément à la loi « informatique et libertés », vous disposez des droits d’accès, de rectification, d’effacement, d’opposition, de limitation et de portabilité de vos données. Vous pouvez retirer votre consentement à tout moment en contactant directement l’Agence / Le Réseau. Consultez le site https://cnil.fr/fr pour plus d’informations sur vos droits. Si vous estimez, après avoir contacté l'Agence / le Réseau, que vos droits « Informatique et Libertés » ne sont pas respectés, vous pouvez adresser une réclamation à la CNIL. Nous vous informons de l’existence de la liste d'opposition au démarchage téléphonique « Bloctel », sur laquelle vous pouvez vous inscrire ici : https://www.bloctel.gouv.fr Dans le cadre de la protection des Données personnelles, nous vous invitons à ne pas inscrire de Données sensibles dans le champ de saisie libre.
Ce site est protégé par reCAPTCHA, les Politiques de Confidentialité et les Conditions d'Utilisation de Google s'appliquent.